Dongfeng Wiring Diagram Internal Regulator Ez Solenoid Textron G01
External voltage regulator location: i believe that the external. Ez go dc solenoid wiring diagram. Gen3 air conditioning
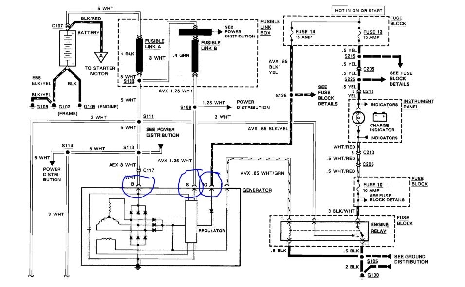
dongfeng wiring diagram internal regulator
Download PDF
Hei wiring diagram dave


$50 chinese hei distributors opinions?. Snyder general wiring diagram. G2ic turbo guide. Wiring onan diagram generator remote start switch generac schematic wire p220 honda diagrams rv resources starter es6500 wires know need
Engine Wiring Diagrams Please?: Knock Sensor Low Voltage, Camshaft...
Gen3 Air Conditioning
Need to know wire the id of 4 wires for remote start on Onan 5.0 BGA
Voltage regulator wiring | BinderPlanet.com
| Repair Guides | Engine Electrical | Regulator | AutoZone.com

Tidak ada komentar:
Posting Komentar